Пример дизайн-проекта
Услуга "Экспресс-проект"
Кому подходит:
✔ 2-3 варианта планировок и расстановки мебели.
✓ Вы купили квартиру, но её планировка вас не совсем устраивает.
Указываются примерные размеры мебели и расстояния.
Примерный, по плану БТИ, по плану от застройщика, либо по вашим замерам.
✓ Вы хотите сами разработать дизайн, концепцию интерьера, выбрать отделочные материалы.
В виде консультации либо чек-листа.
✓ Вы не знаете как сделать планировку функциональной и законной.
Что входит в услугу "Экспресс-проект":
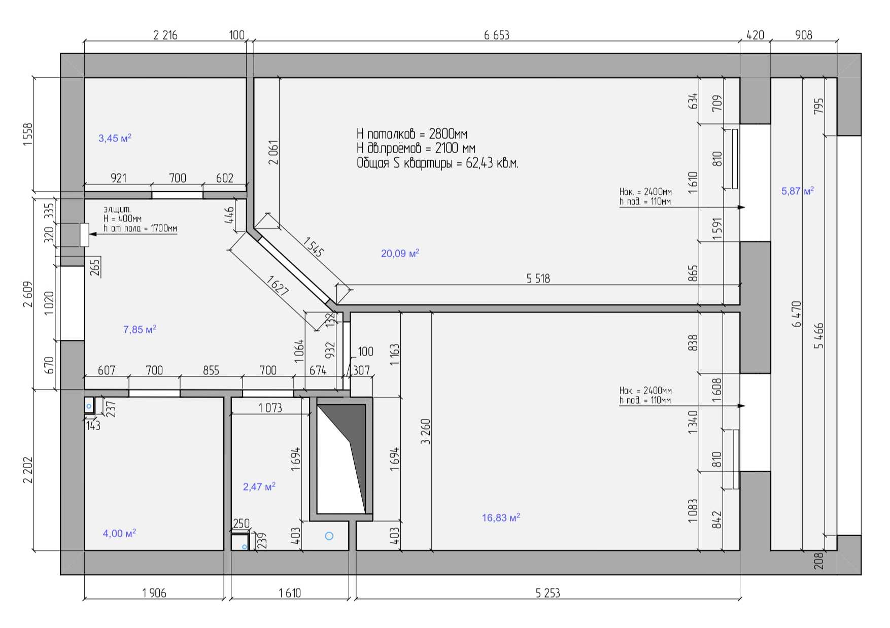
✔ Обмерный план.
✔ Рекомендации по расстановке электрики и осветительных приборов.
✓ Вы готовы сами распланировать всю электрику и освещение.
✓ Вы покупаете квартиру и не знаете какую планировку лучше выбрать.
Заказать услугуЗаказать услугу
✔ Трёхмерные изображения в техническом исполнении.
background
Проанализированы все плюсы и минусы объекта.
✔ Понятный обмерный план помещения.
Заказать услугу
✔ Объёмный вид вашей будущей планировки.
Технические 3Д виды всех помещений квартиры/дома.
До
Добавили спальню, выделили рабочую зону, нашли место для гардеробной и т.д.
✔ Грамотно продуманная планировка в соответствии с законом.
✔ Аудио/видео файлы разбора планировочных решений.
✔ Файл в формате pdf с комментариями.
Что вы получаете:
Все варианты перепланировки и расстановки мебели, 3Д виды, рекомендации.
После
На плане отмечены все выступы, балки, сантехнические коммуникации.
Пример проекта:
✔ Учтены все ваши пожелания с учётом всех правил эргономики.
Продуман каждый сантиметр квартиры.
+7 908 341-49-01
Анна Чернявская
logicplan@yandex.ru
Проекты
Статьи
УслугиЭтапы работКонтакты
Политика конфиденциальности
© 2023 Logicplan. Все права защищены, любое копирование материалов запрещено. Вся представленная информация на сайте носит информационный характер и ни при каких условиях не является публичной офертой.
Craftum Создано на конструкторе сайтов Craftum